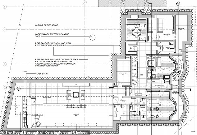
A filha do ex-presidente angolano, José Eduardo dos Santos, planeja demolir a mansão e reconstruí-la uma nova mansão de tipo 'iceberg'. Ela recebeu permissão da prefeitura de Londres para demolir a propriedade e construir uma mansão de quatro andares em seu lugar, com um complexo de piscinas subterrâneas.
A bilionária, de 46 anos, também planeja instalar uma banheira de hidromassagem, uma adega, uma sala de massagem e um cofre forte neste enorme mansão de Kensington, no oeste de Londres. Mas os planos está causando raivas entres vizinhos ricos, um morador deste bairro afirmou que a proposta está "criar ressentimento, divisão na comunidade".
Isabel dos Santos é filha do ex-presidente de Angola José Eduardo dos Santos, que tem enfrentado acusações de ter beneficiado ajuda do pai para enriquecer num pais rico de diamantes e petróleo, A dona da maior riqueza quase 2 bilhões de libras que foi acumulada enquanto seu pai, José Eduardo, 76, serviu como presidente de Angola por 38 anos.
A revelação foi descoberta pela Finance Uncovered, de que Isabel dos Santos é dona da mansão de luxo, provavelmente vai alimentar preocupações generalizadas sobre a origem da sua riqueza.
Empresária angolana Isabel dos Santos se refúgio em Londres depois ter sido notificado pela PGR a 17 de Julho de 2018, no âmbito do inquérito sobre a sua gestão da Sonangol.
A Procuradoria da República de Angola, tinha notificado a filha do antigo Presidente da República, Isabel dos Santos, para prestar esclarecimentos sobre a sua gestão enquanto Presidente do Conselho de Administração da empresa petrolífera Sonangol.
Antigo presidente do Conselho de Administração da Sonangol, Carlos Saturnino, acusou Isabel dos Santos de ter gasto de forma não transparente 135 milhões de dólares com Consultoria e de ter autorizado uma transferência de outros 38 milhões para a empresa Matter business Solutions DMCC com sede em Dubai, um dia depois da sua exoneração. AO24





